启东市力龙机械配件厂(普通合伙) 销售热线:13806283798 13706286186 电话:0513-83211515 传真:0513-83211515 邮箱:lljx1962@163.com 地址:江苏省启东市东郊工业园区9号
一、技术性能
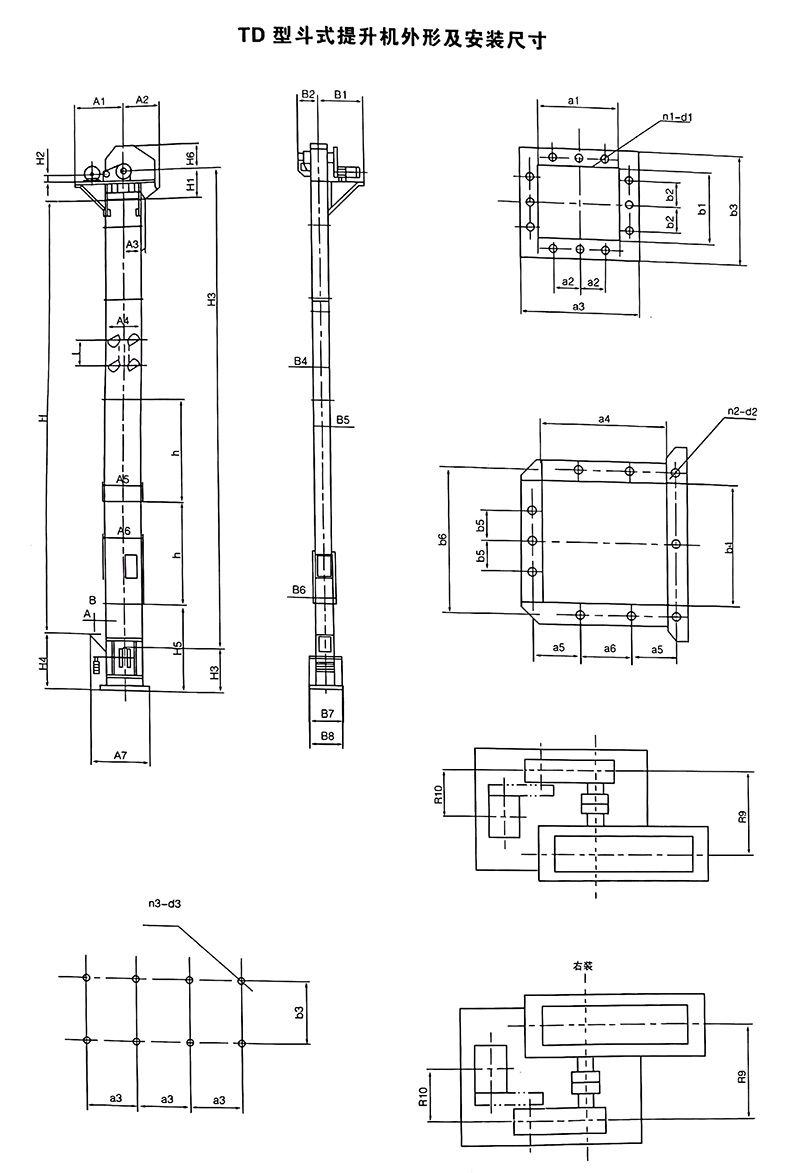
二、主要结构 (1)TD型斗提机结构型式 (2)TD型斗提升机的传动装置有两种形式,分别配有Yz型减速器或ZQ(r)型减速器。YZ 型忒速器直接安装在轴头上,省去了传动平台、联轴器等,使结构紧凑、重量轻、而且其内部带有异型螺逆止器,逆止可靠。该减速器噪音低,运转平稳,并随主轴浮动,可消除安装应力。TD型斗式提升机备有四种料斗Q型(浅斗)、H型(弧底斗)、Zd型(中深)斗)、Sd型(深斗)。
三、安装尺寸